[ Bauleitplanung ]

Die Bauleitplanung stellt unser zentrales Tätigkeitsfeld dar. Flächennutzungspläne, Bebauungspläne, vorhaben­be­zogene Bebauungspläne, Änderungs- oder Aufhebungsverfahren – gleich, welche Planungs- und Nutzungsziele, Größenordnungen oder planungsrechtliche Anforderungen, wir verfügen in allen Fragen über sehr umfassende Erfahrungen und sehen uns als Experten auch für knifflige Planungsaufgaben!

Flächennutzungsplan / Bebauungsplan

Bebauungsplan / Erneuerb. Energien
Stadt Lippstadt, 2023

Bebauungsplan / Erneuerb. Energien
Stadt Oelde, 2023

Bebauungsplan / Erneuerb. Energien
Stadt Oelde, 2023

Bebauungsplan / Erneuerb. Energien
Stadt Herford, 2022

Bebauungsplan / Erneuerb. Energien
Stadt Ennigerloh, 2022

Bebauungsplan / Erneuerb. Energien
Stadt Rietberg, 2009

Bebauungsplan / Sondernutzungen
Stadt Bielefeld, 2022

Bebauungsplan / Sondernutzungen
Stadt Gütersloh, 2022

Bebauungsplan / Sondernutzungen
Stadt Warendorf, 2022

Bebauungsplan / Sondernutzungen
Stadt Löhne, 2021

Bebauungsplan / Gemeinbedarf
Stadt Verl, 2022

Bebauungsplan / Gemeinbedarf
Gemeinde Augustdorf, 2021

Bebauungsplan / Einzelhandel
Stadt Gütersloh, 2021

Bebauungsplan / Einzelhandel
Stadt Gütersloh, 2021

Bebauungsplan / Gewerbe
Stadt Gütersloh, 2022

Bebauungsplan / Gewerbe
Stadt Harsewinkel, 2021

Bebauungsplan / Gewerbe
Stadt Harsewinkel, 2022

Bebauungsplan / Gewerbe
Stadt Halle/Westf., 2021

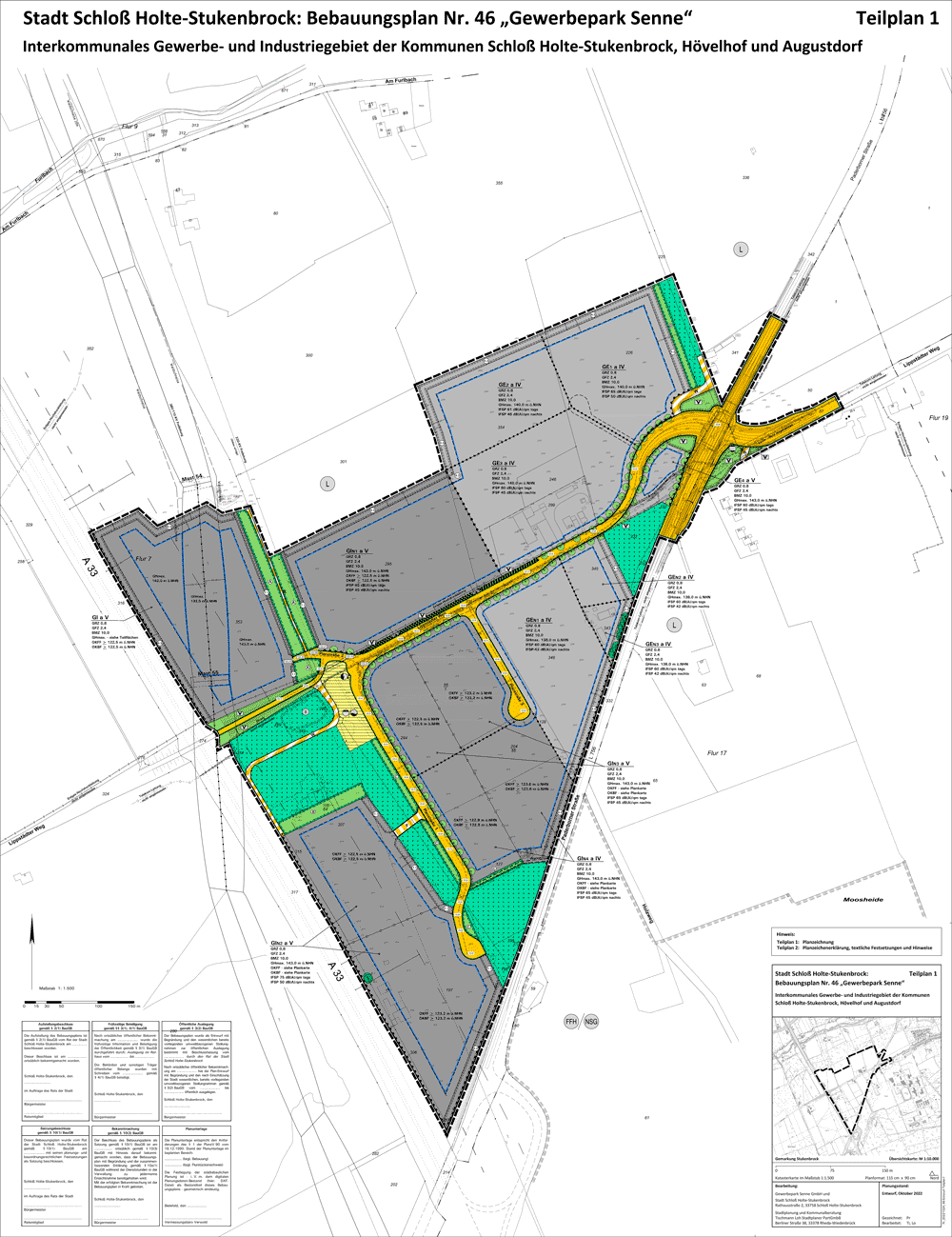
Bebauungsplan / Gewerbe
Schloß Holte-Stukenbrock, 2022

Bebauungsplan / Gewerbe
Gemeinde Steinhagen, 2022

Bebauungsplan / Wohnen
Stadt Bielefeld, 2022

Bebauungsplan / Wohnen
Stadt Bielefeld, 2022

Bebauungsplan / Wohnen
Stadt Bielefeld, 2022

Bebauungsplan / Wohnen
Stadt Bielefeld, 2021

Bebauungsplan / Wohnen
Stadt Bielefeld, 2021

Bebauungsplan / Wohnen
Herzebrock-Clarholz, 2022

Bebauungsplan / Wohnen
Stadt Haltern am See, 2022

Bebauungsplan / Wohnen
Stadt Halle/Westf., 2022

Bebauungsplan / Wohnen
Stadt Halle/Westf., 2022

Bebauungsplan / Wohnen
Gemeinde Beelen, 2022

Bebauungsplan / Wohnen
Gemeinde Everswinkel, 2020

Bebauungsplan / Wohnen
Stadt Halle, 2022

Bebauungsplan / Wohnen
Stadt Verl, 2022

Flächennutzungsplan
Stadt Rheda-Wiedenbrück, 2022

Flächennutzungsplan
Stadt Verl, 2022

Flächennutzungsplan
Stadt Harsewinkel, 2022

Flächennutzungsplan
Herzebrock-Clarholz, 2019

Flächennutzungsplan
Stadt Rietberg, 2016

Flächennutzungsplan
Stadt Verl, 2015

Flächennutzungsplan
Gemeinde Steinhagen, 2014

Flächennutzungsplan
Stadt Rietberg, 2011

Flächennutzungsplan
Gemeinde Beelen, 2011

Bebauungsplan Wohnen Steinhagen 2020

Bebauungsplan / Wohnen
Gemeinde Steinhagen, 2020

Bebauungsplan Wohnen Stadt Gütersloh 2020

Bebauungsplan / Wohnen
Stadt Gütersloh, 2020

Bebauungsplan Stadt Gütersloh 2020

Bebauungsplan / Wohnen
Stadt Gütersloh, 2020

Bebauungsplan Wohnen „Wohngebiet Blotenberg – 2. BA“, Stadt Werther (Westf.), 2020

Bebauungsplan / Wohnen
Stadt Werther (Westf.), 2020

Bebauungsplan Wohnen „Wohngebiet Blotenberg – 1. BA“, Stadt Werther (Westf.), 2019

Bebauungsplan / Wohnen
Stadt Werther (Westf.), 2019

Bebauungsplan Wohnen Grünwaldstr. Bielefeld  2019

Bebauungsplan / Wohnen
Stadt Bielefeld, 2019

Bebauungsplan Wohnen Gemeinde Beelen 2019

Bebauungsplan / Wohnen
Gemeinde Beelen, 2019

Bebauungsplan Wohnen Gemeinde Beelen 2019

Bebauungsplan / Wohnen
Gemeinde Beelen, 2019

Bebauungsplan Nr. 35 „Seehusen 3“, Gemeinde Everswinkel, 2019

Bebauungsplan / Wohnen
Gemeinde Everswinkel, 2019

Bebauungsplan Wohnen Rheda-WD 2018

Bebauungsplan / Wohnen
Rheda-Wiedenbrück, 2018

Bebauungsplan/Wohnen Soest

Bebauungsplan / Wohnen
Stadt Soest, 2017

Vorhabenbezogener Bebauungsplan Nr. 57 „Warendorfer Straße/Auf dem Esch“, Gemeinde Everswinkel, 2016

Bebauungsplan / Wohnen
Gemeinde Everswinkel, 2016

VEP „Warendorfer Straße/Auf dem Esch“, Gemeinde Everswinkel, 2016

Bebauungsplan / Wohnen
Gemeinde Everswinkel, 2016

Bebauungsplan/Wohnen Halle

Bebauungsplan / Wohnen
Halle (Westf.), 2016

Bebauungsplan/Wohnen Borholzhausen

Bebauungsplan / Wohnen
Borgholzhausen, 2015

Bebauungsplan/Gewerbe Harsewinkel 2018

Bebauungsplan / Gewerbe
Stadt Harsewinkel, 2018

Bebauungsplan/Gewerbe Borgholzhausen 2018

Bebauungsplan / Gewerbe
Stadt Borgholzhausen, 2018

Bebauungsplan Nr. 266, Herzebrock-Clarholz, 2017

Bebauungsplan / Gewerbe
Herzebrock-Clarholz, 2017

Bebauungsplan Nr. 184, „Friedrichsdorfer Straße“, Stadt Gütersloh 2016

Bebauungsplan / Gewerbe
Stadt Gütersloh, 2016

Standortuntersuchung Halle 2015

Bebauungsplan / Gewerbe
Stadt Rietberg, 2016

Bebauungsplan/Gewerbe Bielefeld 2015

Bebauungsplan / Gewerbe
Stadt Bielefeld, 2015

Bebauungsplan Nr. 264, Herzebrock-Clarholz, 2014

Bebauungsplan / Gewerbe
Herzebrock-Clarholz, 2014

Bebauungsplan Nr. 200/7 „Einzelhandel Brockhäger Straße“ Stadt Gütersloh, 2020

Bebauungsplan / Einzelhandel
Stadt Gütersloh, 2020

Bebauungsplan Nr. 200/7 „Einzelhandel Brockhäger Straße“ Stadt Gütersloh, 2020

Bebauungsplan / Einzelhandel
Stadt Gütersloh, 2020

Bebauungsplan/Einzelhandel Bielefeld 2016

Bebauungsplan / Einzelhandel
Stadt Bielefeld, 2016

Bebauungsplan/Einzelhandel Bielefeld 2015

Bebauungsplan / Einzelhandel
Stadt Bielefeld, 2015

Bebauungsplan/Einzelhandel Bielefeld 2015

Bebauungsplan / Einzelhandel
Stadt Bielefeld, 2015

Bebauungsplan/Einzelhandel Herzebrock-Clarholz 2013

Bebauungsplan / Einzelhandel
Herzebrock-Clarholz, 2013

Bebauungsplan/Einzelhandel Gütersloh 2013

Bebauungsplan / Einzelhandel
Stadt Gütersloh, 2013

Bebauungsplan/Gemeinbedarf Oelde 2019

Bebauungsplan / Gemeinbedarf
Stadt Oelde, 2019

Bebauungsplan/Gemeinbedarf Oelde 2019

Bebauungsplan / Gemeinbedarf
Stadt Oelde, 2019

Bebauungsplan/Gemeinbedarf, Wohnen Everswinkel 2017

Bebauungsplan / Gemeinbedarf
Gemeinde Everswinkel, 2017

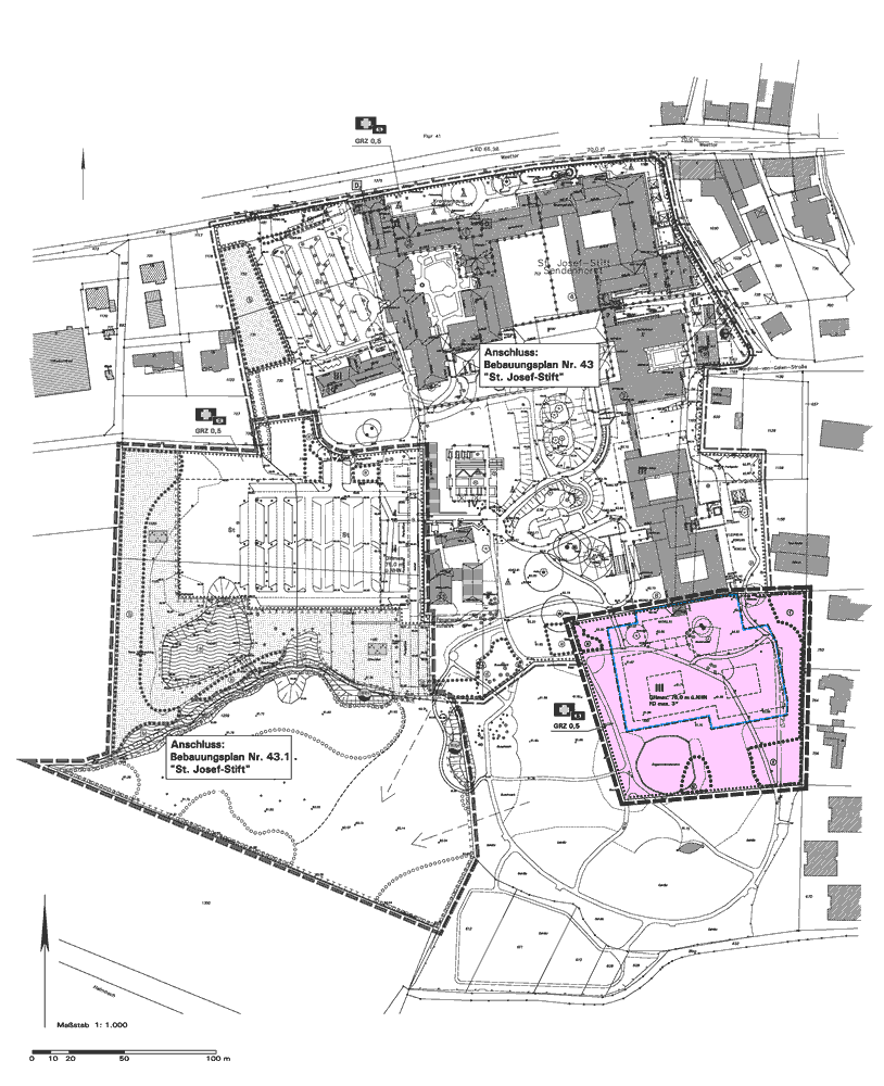
Bebauungsplan/Gemeinbedarf Sendenhorst 2015

Bebauungsplan / Gemeinbedarf
Stadt Sendenhorst, 2015

Bebauungsplan/Gemeinbedarf Drensteinfurt 2012

Bebauungsplan / Gemeinbedarf
Stadt Drensteinfurt, 2012

Bebauungsplan/Gemeinbedarf Gütersloh 2009

Bebauungsplan / Gemeinbedarf
Stadt Gütersloh, 2009

Bebauungsplan/Windkraft Drensteinfurt 2018

Flächennutzungsplan / Windkraft
Stadt Drensteinfurt, 2018

Bebauungsplan/Windkraft Herzebrock-Clarholz 2013

Flächennutzungsplan / Windkraft
Herzebrock-Clarholz, 2013

→ Download Referenzliste PDF / Informationen zu unseren Referenzen erhalten Sie auch unter → buero@stadtplanung‑tl.de.

weitere Projekte zu → [ Regionalplanung ] → [ Städtebauliche Satzungen ] → [ Stadt- und Dorfentwicklung ] → [ Städtebau ]