[ Städtebau ]

Städtebauliche Rahmenplanungen und Entwicklungskonzepte bilden ein weiteres intensives Aufgabenfeld. Ebenso begleiten wir aus städtebaulicher Sicht Diskussions­prozesse und Projektentwicklungen.

Rahmenplan / Machbarkeitsstudie / Standortuntersuchung

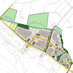
Bebauungplan Nr. 94 Am Schafstall

Rahmenplan / Wohnen [ ] Stadt Haltern am See, 2022

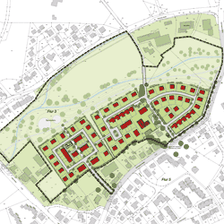
Rahmenplan - Bebauungplan Nr. 391

Rahmenplan / Wohnen [ ] Stadt Rheda-Wiedenbrück, 2021

Rahmenplan Niesenteichhof

Rahmenplan / Wohnen [ ] Stadt Paderborn, 2021

Ahornallee / Surenhofsweg

Rahmenplan / Wohnen [ ] Gemeinde Steinhagen, 2020

Ahornallee / Surenhofsweg

Rahmenplan / Wohnen [ ] Stadt Gütersloh, 2020

Mondscheinweg

Rahmenplan / Wohnen [ ] Stadt Drensteinfurt, 2018

Krullsbachaue

Rahmenplan / Wohnen [ ]
Stadt GÜtersloh, 2013

Fläche Pflug

Rahmenplan / Wohnen [ ]
Rheda-Wiedenbrück, 2018

Gewerbe Soest

Rahmenplan / Gewerbe [ ]
Interkommunal, 2020

Gewerbe Soest

Rahmenplan / Gewerbe [ ]
Stadt Soest, 2014

Einzelhandel Halle (Westf.)

R-Plan / Einzelhandel [ ]
Stadt Halle (Westf.), 2018

Straßenraum Halle

R-Plan / Straßen­räume [ ]
Stadt Halle (Westf.), 2015

Straßenraum Borgholzhausen

R-Plan / Straßen­räume [ ]
Borgholzhausen, 2018

Machbarkeitsstudie H-Cl

Machbarkeitsstudie [ ]
Herzebrock-Clarholz, 2015 

Machbarkeitsstudie Halle

Machbarkeits­studie [ ]
Stadt Halle (Westf.), 2017

Standortuntersuchung Halle 2015

Standort­untersuchung [ ]
Stadt Halle (Westf.), 2015

Standortuntersuchung Halle 2016

Standort­untersuchung [ ]
Stadt Halle (Westf.), 2016

→ Download Referenzliste PDF / Informationen zu unseren Referenzen erhalten Sie auch unter → buero@stadtplanung‑tl.de.

weitere Projekte zu → [ Regionalplanung ] → [ Bauleitplanung ] → [ Städtebauliche Satzungen ] → [ Stadt- und Dorfentwicklung ]