×
start
leistungen
Tischmann Loh & PARTNER
Karriere
Kontakt
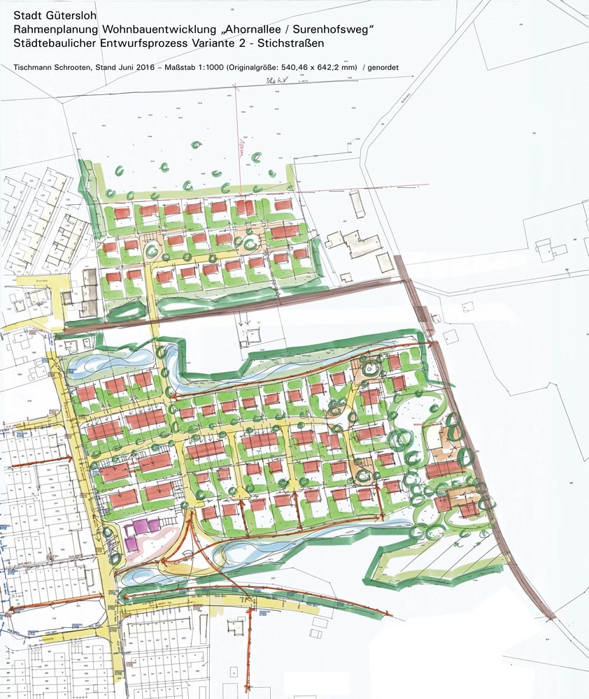
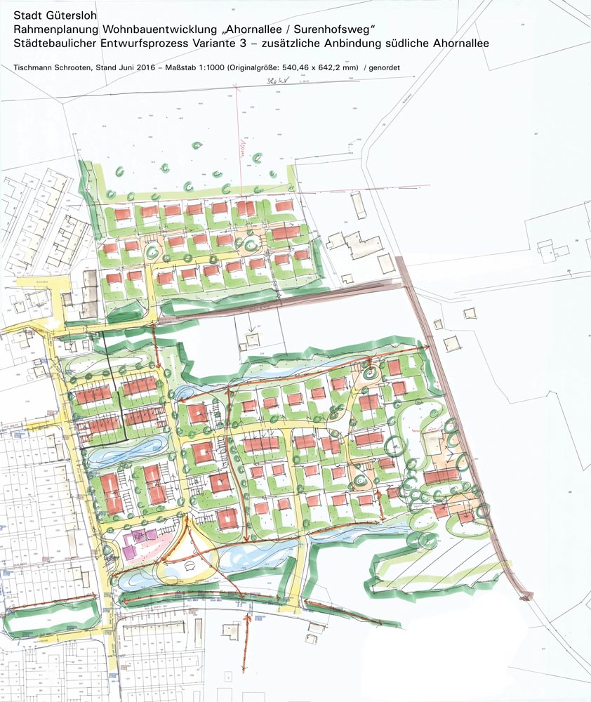
Städtebauliche Rahmenplanung „Ahornallee / Surenhofsweg“
[
Bebauungsplan Nr. 286, Stadt Gütersloh, März 2020
]
Variantendiskussion Rahmenplanung V1–V3
Zwischenschritt:
Städtebauliche Rahmenplanung
zur Übersicht →
[
Städtebau
]
weitere Projekte zu →
[
Regionalplanung
]
→
[
Städtebauliche Satzungen
]
→
[
Stadt- und Dorfentwicklung
]
→
[
Bauleitplanung
]