×
start
leistungen
Tischmann Loh & PARTNER
Karriere
Kontakt
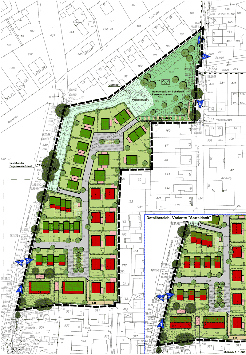
Rahmenplan „Am Schafstall“
[
Bebauungsplan Nr. 94, Stadt Haltern am See, November 2022
]
zur Übersicht →
[
Städtebau
]
weitere Projekte zu →
[
Regionalplanung
]
→
[
Städtebauliche Satzungen
]
→
[
Stadt- und Dorfentwicklung
]
→
[
Bauleitplanung
]